Makléř: Radim Vacula
Telefon: 777 829 ...
E-mail: profi@d ...
Zobrazit celý kontaktTelefon: 777 829 902
E-mail: profi@dumrealit.cz
Nemovitost nabízí
Dumrealit.cz
Svornosti 8, 150 00 Praha 5
Zobrazit kontakt na RK
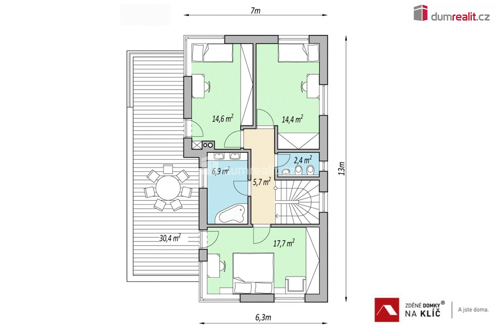
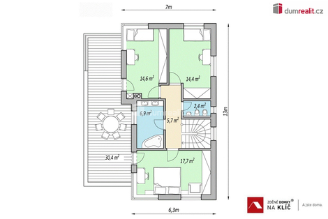
Dumrealit.cz Vám zprostředkuje exkluzivní prodej patrového rodinného domu typu Lotus o velikosti 5+kk o podlahové výměře 149 m2 v Uherském Brodě části Těšov. Rodinný dům Lotus je typ rodinného domu vhodný do rovinatého, ale i mírně svažitého terénu. Součásti uvedené ceny, která již zahrnuje DPH je dům na klíč, inženýrské sítě v dosahu a připojené místo EDG (EON), mimo plynu, pozemek a veškeré projektové práce i stavebního povolení. Pozemek (E) o výměře 1331 m2 je na klidném místě obce. Šíře pozemku je 21,5 m. Navíc k nabízenému pozemku je i podíl na dalším pozemku za zahradou. Dle územního plánu je pozemek veden a schválen pro rodinné bydlení. Jedná se o zděnou stavbu a nabízí se ve variantě na klíč. Uvedená cena domu obsahuje základovou desku, DPH a stavba bude provedena na klíč a předána po kolaudaci k okamžitému užívání. V projektu jsou možné variabilní úpravy dispozice (posuny příček či oken). Dům je ideální pro 5 člennou rodinu s nízkými provozními náklady. Uvedená cena je za pozemek, kompletní stavbu domu v provedení na klíč, projektové dokumentace, vyřízení stavebního povolení, základové desky až po kolaudaci. V uvedené ceně můžete počítat také s finálními povrchovými úpravami exteriéru i interiéru, a to včetně elektroinstalací, sanitárního vybavení s bateriemi, interiérovými dveřmi včetně obložek a vytápění bude řešeno teplovodním podlahovým topením v kombinaci tepelného čerpadla se 180L zásobníkem na teplou vodu. Dle dohody změníme systém vytápění nebo vystavíme komín pro krbové kamna nebo pro využití krbové vložky. Kryté garážové stání spojené s domem nebo venkovní krytou či nekrytou terasu za příplatek. Pro náročnější klienty máme nabídku nadstandardního vybavení chytré domácnosti, klimatizaci, externí žaluzie, rolety, rekuperaci nebo fotovoltaiku. Doba výstavby cca 12-14 měsíců od vydání stavebního povolení a stavbu zahájíme do 10 dnů od jeho vydání. Smlouvy o dílo zašleme na vyžádání včetně položkového rozpočtu. Parametry domu: užitná plocha 149 m2 zastavěná plocha domu 111 m2. V domě se nachází hlavní obytný prostor s kuchyňským koutem, sklad, technickou místnost a WC s umyvadlem, zařízená koupelna, 4 pokoje. V blízkosti je veškerá občanská vybavenost. (Součástí ceny není kuchyňská linka a světla - dokážeme za zvýhodněných podmínek zajistit přes naše dodavatele). Financování zajišťujeme a můžete využití našich služeb, při prodeji Vaší nemovitosti. Doporučuji prohlídku pozemku. Možnost změnit na jiný dům dle požadavků a nebo jiné dva pozemky vedle sebe. Více informací u makléře. Ev. číslo: 655135. Energetický štítek: A (49 kWh/m2/rok).
Prodej, Rodinný dům, Uherský Brod
Dumrealit.cz Vám zprostředkuje výstavbu patrového domu Klára v provedení zděná stavba na klíč s dispozicí 5+kk o užitné ploše 93 m2 a zastavené ploše…
Prodej, rodinný dům, Uh. Brod - Újezdec
Hledáte dům po rekonstrukci za cenu bytu? Nabízíme exkluzivně k prodeji samostatně stojící rodinný dům o dispozici 2+1 a výměře 78 m v obci Újezdec,…