Aktuálně můžete v lokalitě Zlín vybírat z nabídky 38 domů.
Přehled nemovitostí: prodej domy > rodinné domy Zpět na přehled nabídek

Prodej, Rodinný dům, 9+2, 528 m2, Kunovice

564 m2

neuvedeno

G - Mimořádně nehospodárná

1734

03.04.2026

Cena: 7000000 CZK / objekt
Poznámka k ceně: Konečná cena včetně právního servisu a provize RK. 1

Poslat dotaz k nabídce
Zásady používání osobních údajů

Prodejce

Makléř: Dolinek Kamil

Telefon: 603 224 ...

E-mail: kdoline ...

Zobrazit celý kontakt

Nemovitost nabízí

AZET reality

Volgogradská 2413/88, 702 00 Ostrava

www.azetreality.cz

Zobrazit kontakt na RK

Zobrazit všechny nabídky RK

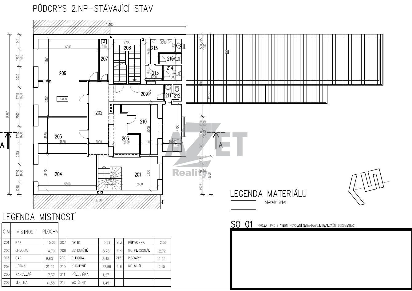
Kunovice Lidická | Velkorysý dům k přestavbě na luxusní rodinné sídlo (pozemek 564 m²) Jsou domy, které si nekupujete kvůli tomu, jak vypadají dnes, ale kvůli tomu, čím se mohou stát. Objekt č.p. 556 na ul. Lidická v Kunovicích nabízí mimořádně velkorysý základ pro vznik reprezentativního rodinného domu s prostorem pro velké obytné zóny, soukromé wellness, pracovnu, hostinské pokoje i zázemí, které u běžných domů jednoduše nenajdete. Dům stojí v zastavěném území v liniové zástavbě rodinných domů, na rovinatém pozemku parc. č. 891 o výměře 564 m². Zastavěná plocha domu je 333 m², což dává skvělý půdorysný luxus pro velkorysé dispoziční řešení. Lokalita je praktická a výborně dostupná ideální pro ty, kdo chtějí mít vše po ruce a zároveň si vytvořit vlastní soukromý svět za zdmi domu. Proč je to výjimečná nabídka pro náročné: Velký dům s potenciálem luxusní přestavby aktuální užitná plocha domu je cca 650 m², dvoupodlažní, částečně podsklepený, se sedlovou střechou Pozemek 564 m² (parc. č. 891) v zavedené rezidenční lokalitě Rovinatý terén a tvar pozemku vhodný pro citlivé řešení dvora/zahrady Mimo záplavové území, bez poddolovaného území Přímé dopravní napojení stávající sjezd šířky 3,8 m Inženýrské sítě již přivedeny: vodovod, kanalizace, plyn a NN (vzdušná přípojka) Charakter stavby v souladu s okolní zástavbou plánované úpravy a přístavba/nástavba respektují charakter území Technický stav (stručně a férově): Dům je určen k modernizaci odpovídající jeho stáří. Konstrukčně je postaven z plných pálených cihel na vápennocementovou maltu, má dřevěné trámové stropy, železobetonové schodiště, dřevěný krov a krytinu z keramických tašek. Okna jsou dřevěná s dvojsklem. Vytápění je nyní řešeno plynovým kotlem a radiátory. Výhoda pro budoucího majitele: Můžete dům přetvořit do moderního standardu bez kompromisů přesně podle vlastního stylu a nároků. Územní plán a využití: Nemovitost je dle územního plánu v ploše BI bydlení individuální. Bytové domy v této lokalitě územní plán nepovoluje. Právě proto je nabídka ideální pro klienta, který chce vytvořit velkorysé rodinné bydlení. Bonus pro investory (volitelná alternativa): Pokud byste se rozhodli využít nemovitost investičně, je k dispozici připravený investiční projekt výstavby penzionu s platným stavebním povolením a hotovou projektovou dokumentací (stavební úpravy, přístavba a nástavba stávajícího objektu). Závěr: Hledáte-li místo, kde nevznikne jen další dům, ale osobní sídlo s charakterem a prostorem, č.p. 556 na Lidické v Kunovicích je výjimečný základ, rozsáhlá zastavěná plocha, zavedené okolí, sítě na pozemku a jasně dané rezidenční využití. Pro více informací, podklady a domluvení prohlídky mne kontaktujte. <a href="https://www.eurobydleni.cz/byty/3_1/karvina/obec-havirov/prodej/"><strong>Prodej bytu 3+1 Havířov</strong></a>




Prodej rodinného domu Kunovice na Eurobydleni.cz


Nahoru