Makléř: Martin Černý
Telefon: 771 158 ...
E-mail: cerny@i ...
Zobrazit celý kontaktTelefon: 771 158 767
E-mail: cerny@idealninajemce.cz
Nemovitost nabízí
Ideální nájemce
Lazaretní 925/9, 615 00 Brno
Zobrazit kontakt na RK222 703 030
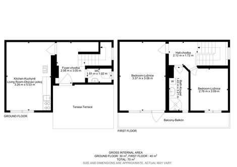
K prodeji nabízíme útulnou chatu v oblíbené rekreační oblasti Osvětimany, obklopené nádhernou přírodou a lesy. Součástí nabídky je také stavební pozemek o výměře 2 121 m2, který lze přikoupit za cenu 1,5 mil. Kč. V případě více zájemců bude upřednostněn ten, kdo zakoupí chatu i stavební pozemek společně. Chata je ve velmi dobrém technickém stavu, částečně zateplená a připravená k okamžitému užívání bez nutnosti dalších investic. Nachází se na rozlehlém pozemku, který poskytuje dostatek soukromí i prostoru pro relaxaci, rodinné chvíle nebo zahradničení. Velkou výhodou je napojení na obecní vodovod Interiér je laděný do příjemného dřevěného stylu a nabízí útulný obývací pokoj s krbem, plně vybavenou kuchyni, další dva pokoje a koupelnu se sprchovým koutem i pračkou. Toaleta je oddělena. Osvětimany jsou známé jako místo s bohatými možnostmi pro aktivní odpočinek - v létě cykloturistika a turistické trasy v okolí Chřibů, přírodní koupaliště, rybník a vyhledávaná přehrada, v zimě pak místní lyžařský areál s vleky i běžeckými tratěmi. V obci najdete základní občanskou vybavenost - obchod, restaurace, školu, sportovní areál i kulturní akce, které tu pravidelně ožívají. Dojezdová vzdálenost do Uherského Hradiště nebo Kyjova je jen cca 20 minut. Pokud hledáte místo, kde můžete trávit volný čas s rodinou a přáteli, užívat si přírodu, klid a přitom mít na dosah vše potřebné, tahle chata je ideální volbou. V případě dotazů nebo zájmu o prohlídku se na mě neváhejte obrátit. Rád Vás provedu. Rozměry chaty byly zaměřeny laserovou technologií Matterport a slouží pouze jako orientační údaj. Skutečná výměra se může lišit.
Prodej zahrady 933 m2, s celoročně obyvatelnou chatou v obci Březolupy
Dovolujeme si Vám nabídnout prodej zahrady s celoročně obyvatelnou chatou na krásném místě v obci Březolupy. Chata se nachází na jedinečném místě s…
Prodej chaty 26 m2, pozemek 364 m2, Hluk, Babí hora, okres Uherské Hradiště
ID 02641 Filip Hladiš & Explicit Reality Hledáte místo, kde si vytvoříte vlastní rekreační zázemí podle svých představ? V Hluku, na polosamotě u…