Makléř: Souček Martin
Telefon: 773 022 ...
E-mail: info@ex ...
Zobrazit celý kontaktTelefon: 773 022 220
E-mail: info@explicitreality.cz
Nemovitost nabízí
EXPLICIT REALITY, s.r.o.
Chudenická 1059/30, 102 00 Praha 10
Zobrazit kontakt na RK
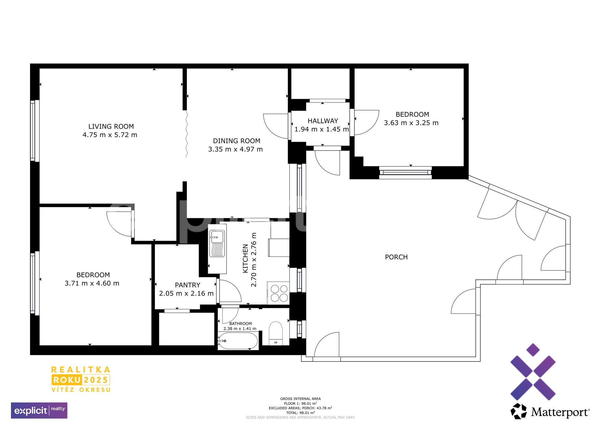
Nabízím k prodeji rodinný dům o dispozici 4+1 s podlahovou plochou 98 m2 na pozemku o výměře 186 m2, situovaný na ulici Mánesova v Bojkovicích. Nemovitost je určena k rekonstrukci, což novému majiteli otevírá široké možnosti úprav dle vlastních představ a potřeb. Dispozice domu umožňuje oddělení společenské a klidové části. Vstup je ze dvora, odkud se vchází do menší chodby. Po pravé straně se nachází jeden z pokojů, po levé straně jsou přístupné ostatní místnosti. Dům nabízí celkem čtyři prázdné a nevybavené pokoje připravené k úpravám. Součástí je kuchyně s kuchyňskou linkou, volně stojící lednicí a pračkou, na kterou navazuje praktická špajzka. K dispozici je koupelna a samostatné WC. Uzavřený dvůr poskytuje soukromí i prostor pro další využití. Dům je postaven z cihel Porotherm, elektřina je v původním hliníkovém provedení. K dispozici je plynová přípojka a nový kondenzační kotel, vytápění je možné rovněž klimatizační jednotkou. Střešní trámy jsou přibližně 30 let staré, přívod vody je nový a odpad je řešen septikem. Nemovitost je vhodná pro zájemce hledající dům s potenciálem v klidné lokalitě s blízkostí přírody. Budu se těšit na společné prohlídky tohoto domu. Ing. Martin Souček, realitní makléř Explicit Reality.
Prodej rodinné domy, 510 m2 - Bojkovice
Výjimečná investiční nemovitost v centru města - kombinace komerčního prostoru a bydlení. Investiční příležitost, která generuje stabilní měsíční…
Prodej, Rodinné domy, Investiční nemovitost, 275 m2 - Bojkovice
Investiční příležitost - dvougenerační dům se dvěma bytovými jednotkami, Bojkovice (ul. Nádražní) Nabízíme k prodeji dvougenerační rodinný dům se…