Aktuálně můžete v lokalitě Zlín vybírat z nabídky 39 domů.
Přehled nemovitostí: prodej domy > rodinné domy Zpět na přehled nabídek

Prodej, Rodinný dům, Zlín

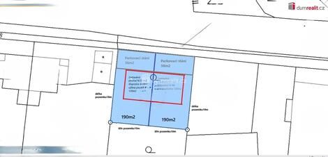
190 m2

118 m2

osobní

A - Mimořádně úsporná

653929

18.02.2026

Cena: 10999000 CZK / objekt
Poznámka k ceně: Cena včetně pozemku, projektu, stavebního povolení, výstavby domu na klíč, kolaudace a parkování. DP 1

Poslat dotaz k nabídce
Zásady používání osobních údajů

Prodejce

Makléř: Radim Vacula

Telefon: 777 829 ...

E-mail: profi@d ...

Zobrazit celý kontakt

Nemovitost nabízí

Dumrealit.cz

Svornosti 8, 150 00 Praha 5

www.dumrealit.cz

Zobrazit kontakt na RK

Zobrazit všechny nabídky RK

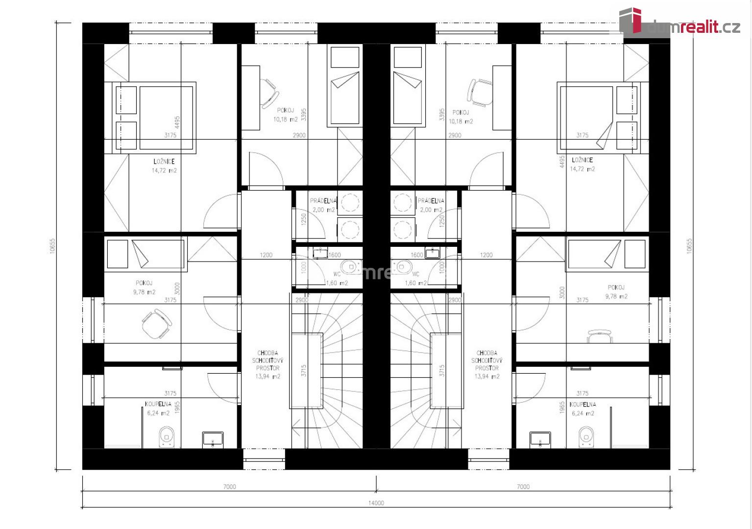
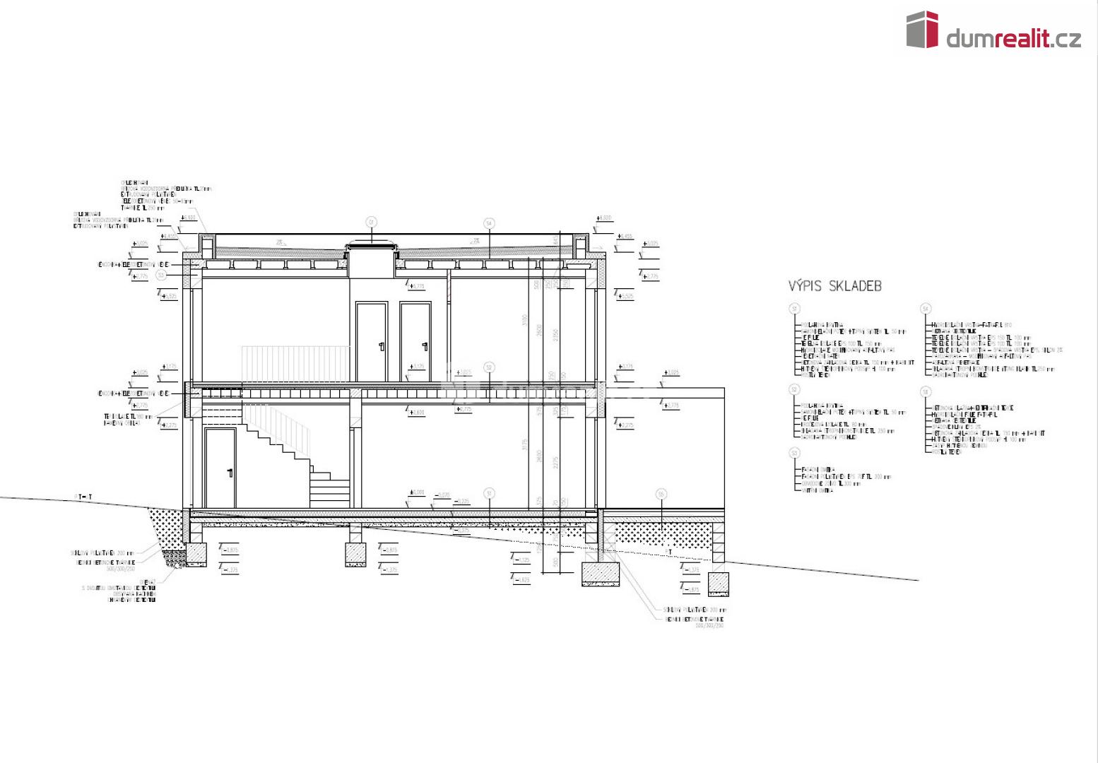
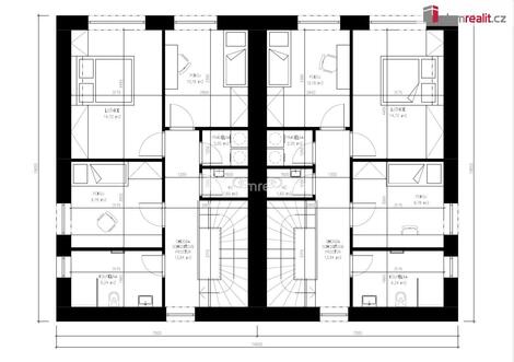
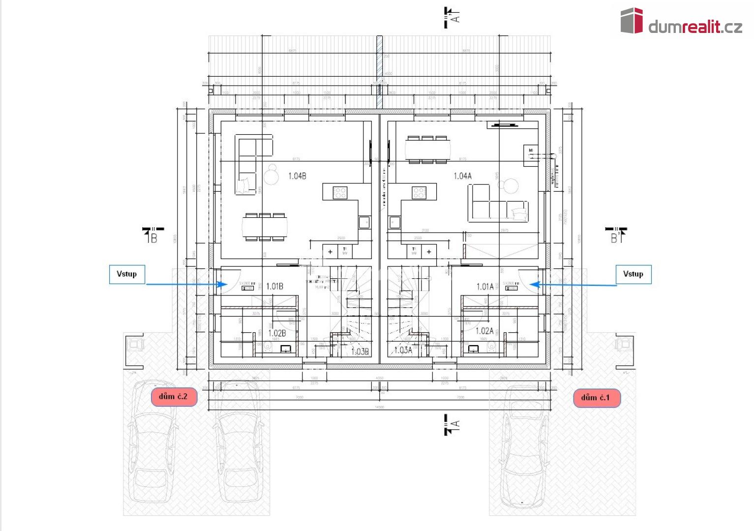
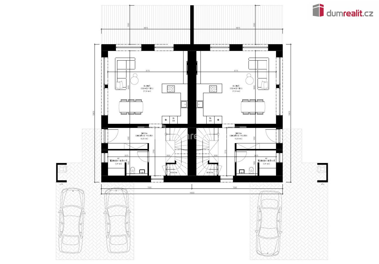
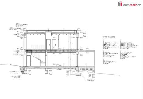
Váš nový domov ve Zlíně. Kde se historie potkává s moderním životem! Představte si domov, který v sobě nese duši Zlína, ale zároveň nabízí komfort a efektivitu 21. století. Přesně takový je náš nový patrový dům 4+kk na klíč, inspirovaný nadčasovou elegancí Baťovských domků a zahalený do teplých tónů oranžových cihel. Je to perfektní útočiště pro Vaši až pětičlennou rodinu, kde se budete cítit hrdě a spokojeně. Zapomeňte na starosti s výstavbou! Stavební povolení je již v ruce a my startujeme do 30 dnů, abychom Vám předali klíče od Vašeho vysněného domova za pouhých 12-14 měsíců. Harmonie tradiční krásy a moderního pohodlí. Architektura s duší. Náš dům je poctou zlínské tradici. Exteriér s fasádou z oranžových cihel evokuje klasickou eleganci Baťovských staveb, dodává domu charakter, robustnost a hřejivý vzhled. Je to domov, který nestárne a má svůj příběh. Komfort na klíč. Od A do Z. Užijte si bydlení bez kompromisů, kde je myšleno na každý detail. V ceně se základní fasádou, projekt, základová deska, veškeré přípojky, až po kolaudaci a finální úpravy. Prostorný a efektivní 118 m2 užitné plochy pro Vaši rodinu s nízkými provozními náklady. Vlastní pozemek 190 m2 soukromí a pohodlné parkovací stání 36 m2. Moderní Technologie pro Váš Klid. V interiéru na Vás čeká to nejlepší z moderních technologií. Ekologické a úsporné vytápění: Teplovodní podlahové topení v celém domě, poháněné tepelným čerpadlem se 180 L zásobníkem na teplou vodu. Pocit tepla a komfortu po celý rok. Vysoký standard vybavení: Kvalitní elektroinstalace, kompletní sanitární vybavení s moderními bateriemi, a elegantní interiérové dveře s obložkami. Přizpůsobte si své sny. Flexibilita dispozice: Možnost posunu příček a individuálních úprav již ve fázi projektu. Vytápění na míru. Dle dohody změníme systém vytápění nebo vystavíme komín pro krbová kamna/vložku pro útulné večery. Pro maximální pohodlí a luxus si můžete dům rozšířit o kryté garážové stání propojené s domem a stylovou terasu - krytou či nekrytou za příplatek. Nadstandardní výbavu: Chytrou domácnost, klimatizaci, rekuperaci, externí žaluzie/rolety nebo fotovoltaiku pro ještě větší úspory a komfort. Tento dům není jen stavba, je to životní styl. Spojení tradiční zlínské estetiky s moderními technologiemi a nízkými náklady. Nenechte si ujít tento jedinečný domov! Podívejte se sami! Srdečně Vás zveme na prohlídku pozemků a našich již realizovaných staveb, kde se na vlastní oči přesvědčíte o kvalitě a smyslu pro detail. Kontaktujte našeho makléře ještě dnes a udělejte první krok k Vašemu novému domovu ve Zlíně! Ev. číslo: 653929. Energetický štítek: A (49 kWh/m2/rok).



Nahoru