Aktuálně můžete v lokalitě Zlín vybírat z nabídky 40 domů.
Přehled nemovitostí: prodej domy > rodinné domy Zpět na přehled nabídek

Prodej, Rodinný dům, Zlín

488 m2

118 m2

osobní

A - Mimořádně úsporná

653508

04.02.2026

Cena: 9840000 CZK / objekt
Poznámka k ceně: Cena včetně výstavby domu na klíč, pozemku a DPH. VOLNÝ! 1

Poslat dotaz k nabídce
Zásady používání osobních údajů

Prodejce

Makléř: Petr Sedlařík

Telefon: 606 765 ...

E-mail: sedlari ...

Zobrazit celý kontakt

Nemovitost nabízí

Dumrealit.cz

Svornosti 8, 150 00 Praha 5

www.dumrealit.cz

Zobrazit kontakt na RK

Zobrazit všechny nabídky RK

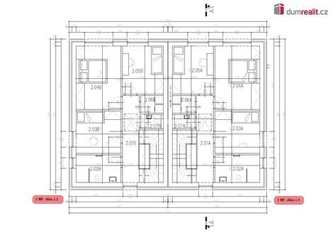
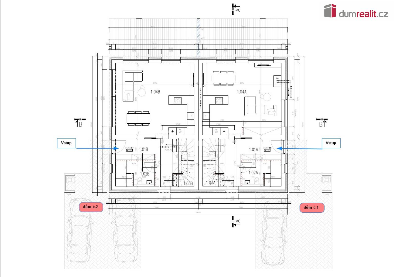
Dumrealit.cz Vám zprostředkuje výstavbu patrového domu 4+kk o užitné ploše 118 m2 v provedení na klíč s pozemkem v Kostelci u Zlína. Tento dvojdům jsme již zahájili, takže se můžete přidat a stát se majiteli nového domu č.2 a do konce roku 2026 bydlet. Součástí ceny je dům, pozemek č.2 o velikosti 488 m2 (šíře 10,5 m a délka cca 46 m), příprava pozemku pro stavbu, připojení domu na inženýrské sítě, přípojné místo NN, retenční nádrž a parkovací místo o velikosti 36m2. Dům je realizován jako dvojdomek. Zastavěná plocha jednodomku je 74 m2 s užitnou plochou. Prodej pozemků bez výstavby neumožňujeme, pouze pozemky č.5 a 6 s výstavbou do dvou let. V projektu jsou možné variabilní úpravy dispozice (posuny příček) a máme i připravený projekt dům s garáží. Patrový dům je ideální pro 5 člennou rodinu s nízkými provozními náklady. Uvedená cena je za pozemek, kompletní stavbu domu v provedení na klíč, projektové dokumentace, vyřízení stavebního povolení, základové desky až po kolaudaci. V uvedené ceně můžete počítat také s finálními povrchovými úpravami exteriéru i interiéru, a to včetně elektroinstalací, sanitárního vybavení s bateriemi, interiérovými dveřmi včetně obložek a vytápění bude řešeno teplovodním podlahovým topením v kombinaci tepelného čerpadla se 180L zásobníkem na teplou vodu. Dle dohody změníme systém vytápění nebo vystavíme komín pro krbové kamna nebo pro využití krbové vložky. Kryté garážové stání spojené s domem nebo venkovní krytou či nekrytou terasu za příplatek, možno také terasu podsklepit. Pro náročnější klienty máme nabídku nadstandardního vybavení chytré domácnosti, klimatizaci, externí žaluzie, rolety, rekuperaci nebo fotovoltaiku. Doba výstavby cca 12-14 měsíců od vydání stavebního povolení a stavbu zahájíme do 10 dnů od jeho vydání. Smlouvu o dílo včetně položkového rozpočtu a vzorovou kupní smlouvu zašleme na vyžádání. Dne 4. září 2024, došlo k podpisu smlouvy o přeložce distribuční soustavy se společností EG.D. a budou zahájeny následné kroky pro změnu vedení a umístění vysokého napětí - realizace nejpozději do roku 2027. Doporučuji prohlídku pozemků a případně našich staveb. Více u makléře. Ev. číslo: 653508. Energetický štítek: A (49 kWh/m2/rok).



Nahoru