Makléř: Cífková Alena
Telefon: 601 060 ...
E-mail: zlin@ce ...
Zobrazit celý kontaktTelefon: 601 060 698
E-mail: zlin@century21.cz
Nemovitost nabízí
CENTURY 21 Style Happy
Štefánikova 2464/7, 76701 Zlín
www.century21.cz/kancelar-style-happy
Zobrazit kontakt na RK739 565 656
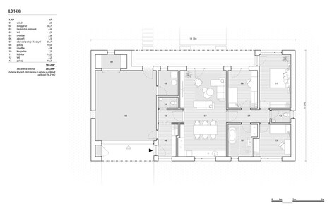
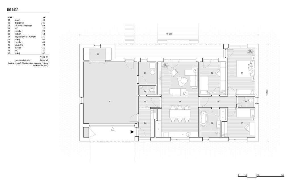
Ve spolupráci s majitelem pozemku, vám exkluzivně nabízíme jedinečnou příležitost pořídit si úspornou dřevostavbu na klíč - model ILO 143G. Tato nabídka zahrnuje prostorný pozemek o velikosti 1003 m2 včetně zajištění kompletní výstavby. Co je zahrnuto v ceně? Pozemek i dům s kompletním dokončením interiéru, včetně projektové dokumentace, ČOV, retenční nádrže, přípojek a základních terénních úprav. Vybavené koupelny a WC - včetně sanitární výbavy. Vnitřní dveře, podlahové krytiny, obklady a dlažby - vše ve vysoké kvalitě. Moderní design a praktické řešení pro pohodlné bydlení. Upozornění: Kuchyňská linka není součástí dodávky, abyste si ji mohli přizpůsobit svým představám. Proč si vybrat právě tento dům? ✅ Nízké náklady na bydlení: Úsporná dřevostavba s kvalitním zateplením. ✅ Komfortní teplo: Teplovodní podlahové vytápění s tepelným čerpadlem a TUV nádrží. ✅ Kompletní infrastruktura: Napojení na všechny inženýrské sítě. ✅ Ekologické řešení: Retenční nádrž na dešťovou vodu. ✅ Připraveno k životu: Včetně základních terénních úprav. Přizpůsobte si ho podle sebe! Máte možnost ovlivnit vzhled svého nového domova: Vyberte si odstíny vinylových podlah, koupelnových obkladů a dekorů dveří. Zvolte si ze dvou odstínů venkovní fasády, které se vám nejvíce líbí. Dispozice a parametry: Typ domu: Bungalov Dispozice: 4+kk + dvojgaráž Užitná plocha: 143 m2 Zastavěná plocha: 204 m2 Rozměry domu: 19,4 x 10,5m Nenechte si ujít tuto jedinečnou šanci na moderní a úsporné bydlení! Podrobný popis dřevostavby a půdorys naleznete v galerii. Zaujala vás tato nabídka? Kontaktujte nás ještě dnes a domluvte si prohlídku!
Prodej rodinného domu, 93 m2, Březnice u Zlína
Nabízíme prodej samostatného rodinného domu v Březnici u Zlína. Jedná se o jednopodlažní dům smíšené konstrukce přibližně z roku 1940 o užitné ploše…
Rodinný dům, prodej, Březnice, Zlín
Se souhlasem majitele nabízíme ke koupi rodinný dům určený ke kompletní rekonstrukci či demolici. Nemovitost se nachází v centrální části obce. Dům…