Makléř: Bc. Kalousek David
Telefon: 725 293 ...
E-mail: david.k ...
Zobrazit celý kontaktTelefon: 725 293 969
E-mail: david.kalousek@century21.cz
Nemovitost nabízí
CENTURY 21 Style Happy
Štefánikova 2464/7, 76701 Zlín
www.century21.cz/kancelar-style-happy
Zobrazit kontakt na RK739 565 656
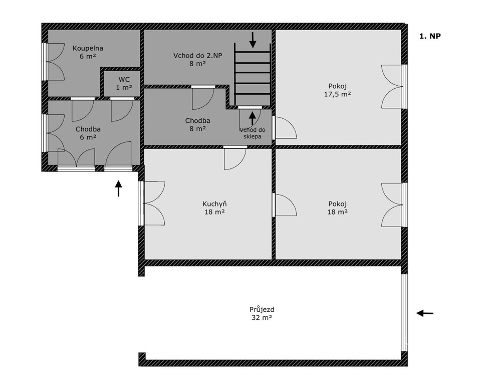
Nabízíme prodej samostatně stojícího rodinného domu se zahradou v obci Břest, vzdálené 6km od Kroměříže. Celková výměra pozemků je 839 m2. Současná dispozice domu je 4+1, ale dům přímo vybízí k rekonstrukci a dalšímu rozšíření. Velkorysý půdní prostor nabízí možnost vybudování obytného podkroví a ještě více místa pro pohodlné bydlení. Dům je napojen na elektřinu, obecní vodovod i kanalizaci, s možností připojení plynu. Konstrukce domu je cihlová, osazená plastovými okny a betonovými podlahami, což tvoří ideální základ pro rekonstrukci podle vlastních představ. Součástí je také vlastní studna pro užitkové využití. Na rovinaté, zatravněné zahradě se nachází zděná hospodářská budova, která nabízí široké možnosti využití. V části je zavedena elektřina a obecní voda, část objektu je podsklepená, což poskytuje praktický prostor pro skladování nebo dílnu. Dispozice domu viz přiložený půdorys. Energetický štítek budovy nebyl dosud dodán, proto je v souladu se zákonem uvedena třída energetické náročnosti G.
Prodej, Rodinný dům, Komárno
Rodinný dům s garáží a dílnou - Komárno Nabízíme k prodeji rodinný dům v obci Komárno, který je určen ke kompletní rekonstrukci nebo k demolici.…
Prodej, Rodinný dům, Kyselovice
Nabízíme k prodeji dvoupatrový rodinný dům o celkové podlahové ploše 300 m2, který se nachází na pozemku o velikosti 658 m2 v klidné obci Kyselovice,…