Makléř: Realtní specialista Jeseník
Telefon: 603 433 ...
E-mail: realitn ...
Zobrazit celý kontaktTelefon: 603 433 890
E-mail: realitniporadna@centrum.cz
Nemovitost nabízí
AAABYTY.CZ - Jeseník
Sokolská 533, 790 01 Mikulovice
Zobrazit kontakt na RK777 613 774
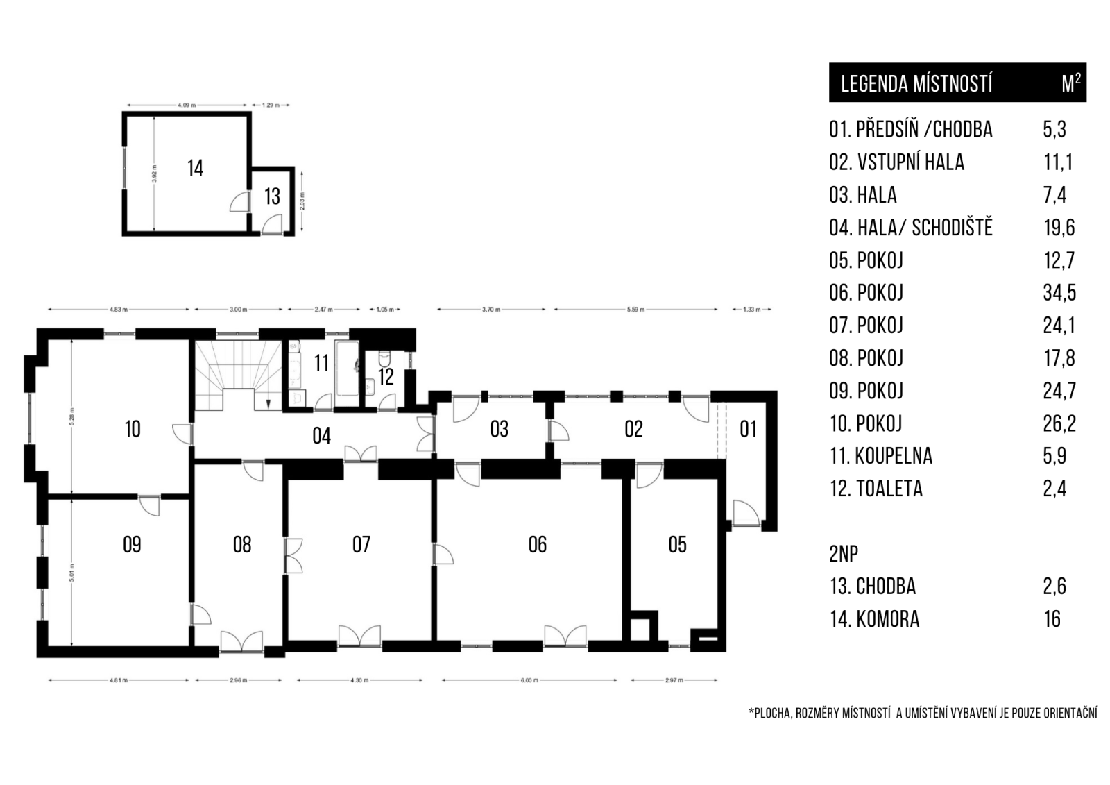
Útulný rodinný dům s prostornou zahradou a stodolou v srdci malebné obce Kelč. Vítejte v domě, který nabízí to nejlepší z obou světů - pohodlí soukromého bydlení a pohodlí městského života. Tento rodinný dům s dispozicí 7+1 přináší ideální prostor pro vaši rodinu, zatímco jeho poloha v srdci obce Kelč vám poskytuje výhody veškeré městské infrastruktury. S celkovou obytnou plochou 168 m nabízí tento dům dostatek místa pro vaše potřeby. Navíc je zde samostatný pokoj v druhém patře, což dává možnost využití prostoru podle vašich potřeb - buď jako pracovnu, hernu nebo hostinský pokoj. Jedním z hlavních předností tohoto domu je jeho velkorysá pozemková parcela o rozloze 1.828 m. To znamená, že vaše rodina bude mít dostatek místa pro venkovní aktivity, zahradní grilování nebo prostě jen relaxaci pod širým nebem. Pokud jde o vybavenost, nemusíte se obávat žádných kompromisů. Dům je napojen na obecní vodovod a kanalizaci, s možností využití plynu. Vytápění v domě je řešeno buď elektrickými topnými panely nebo klasickými kamny na tuhá paliva, což umožňuje účinné a ekonomické vytápění během chladnějších měsíců. Dům je také vybaven elektrickým napětím jak 230V, tak i 400V, což zajišťuje dostatek energie pro vaše každodenní potřeby. Jeho poloha v těsném sousedství náměstí přináší další výhody - veškerá občanská vybavenost, jako je škola, školka, obchody, restaurace a dokonce i benzínová pumpa, jsou jen pár kroků od vašich dveří. To vám umožňuje žít pohodlným způsobem života bez zbytečného cestování. Tento domov nabízí nejen pohodlí a prostor pro vaši rodinu, ale také možnost vychutnat si klidný venkovský život s veškerými výhodami městského života. Nechte se okouzlit touto unikátní nabídkou a přijďte si prohlédnout tento skvostný rodinný dům v obci Kelč - váš nový domov čeká na vás! Pro více informací či prohlídku nás neváhejte kontaktovat. Těšíme se na vaši návštěvu! <a href="https://www.eurobydleni.cz/pozemky/stavebni-pozemek-bydleni/mlada-boleslav/obec-mnichovo-hradiste/prodej/"><strong>Prodej stavebního pozemku Mnichovo Hradiště</strong></a>
Prodej, Rodinný dům, Horní Bečva
Dvě nemovitosti, jedna příležitost: Bydlení a investice v Horní Bečvě AKTUALIZACE: NYNÍ LZE DOMY KOUPIT TAKÉ SAMOSTATNĚ Hledáte způsob, jak…
Rodinný dům, prodej, Stanovnice, Karolinka, Vsetín
Ve výhradním zastoupení nabízíme k prodeji prostorný rodinný dům s pozemkem o velikosti 1.942 m2 v samém srdci Valašska v malebné obci Karolinka,…
Prodej rodinného domu Kelč na Eurobydleni.cz