Makléř: Václav Jančík
Telefon: 800 775 ...
E-mail: info-re ...
Zobrazit celý kontaktTelefon: 800 775 577
E-mail: info-reality@swisslifeselect.cz
Nemovitost nabízí
Swiss Life Select Reality
Pobřežní 620/3, 186 00 Praha
Zobrazit kontakt na RKinfo-reality@swisslifeselect.cz
800 775 577
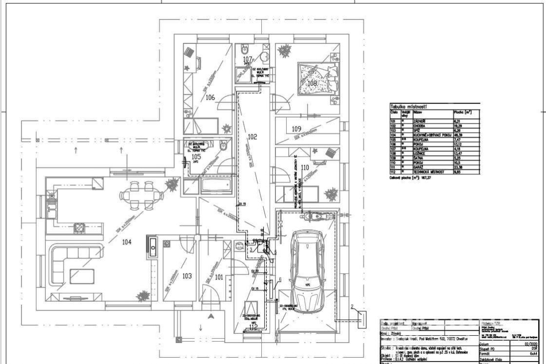
Nabídka prodeje novostavby RD v obci Bořenovice u Holešova. RD je umístěn na rohovém pozemku v obci o rozloze 987m2. Na pozemku je umístěna stavba RD o velikosti 4+kk s užitnou plochou 167m2, typ domu bungalov, garáž je součástí domu. . Uvedená cena odpovídá nynějšímu stavu nemovitosti na aktuálních fotografiích. Vnitřní prostory domu jsou pro lepší představivost na fotografiích vizualizovány. V domě jsou hotovy podlahové úpravy v kuchyni a koupelně včetně elektrického podlahového vytápění v celém domě. Součástí prodeje je kompletní stavební dokumentace včetně platného stavebního povolení. Investor se může rozhodnout na dokončení RD kompletně do detailu, dle jeho přání. Elektřina včetně měření na pozemku, voda přes cestu u pozemku, odpady dle projektu přes vlastní domovní ČOV, vytápění bude řešeno tepelným čerpadlem. Obec Bořenovice se nachází v okrese Kroměříž ve Zlínském kraji, od města Holešov vzdálena 4km, Kroměříž vzdálena 30 km a 10 km k dálnici D55. Žije zde cca 200 obyvatel. V obci je obchod se smíšeným zbožím, zajištěna autobusová doprava do Holešova. <a href="https://www.eurobydleni.cz/domy/rodinny-dum/havlickuv-brod/obec-okrouhlice/prodej/"><strong>Prodej rodinného domu Okrouhlice</strong></a>
Prodej, Rodinný dům, Bořenovice
Zprostředkujeme Vám výstavbu domu na klíč typ Markéta 4+kk, 115 m2 na pozemku (č. 18) o velikosti 980 m2 v Bořenovicích okr. Kroměříž. Bungalov…
Prodej, Rodinný dům, Bořenovice
Zprostředkujeme Vám výstavbu domu na klíč typ Viola 4+kk, 120 m2 na pozemku (č. 2) o velikosti 1056 m2 v Bořenovicích okr. Kroměříž. Bungalov VIOLA…
Prodej rodinného domu Bořenovice na Eurobydleni.cz